The Beauford • Plot 93

2 bedroom semi-detached with £8,000 towards stamp duty and £1,500 legal fees paid

Sawbridgeworth, Hertfordshire
£410,000

At a glance

  • Sociable open plan kitchen/diner with double doors to the rear garden
  • Separate lounge for relaxing of an evening
  • Handy downstairs cloakroom for storage
  • Bedroom 1 equipped with an en suite
  • Bedroom 2 could be used as a study

The two-bedroom Beauford is an ideal modern home for both first time buyers and for those who are downsizing. £8,000 towards stamp duty!

Some images are used for illustrative purposes only and include optional upgrades at additional cost. Development managed by Taylor Wimpey North Thames.
Stop waiting start living

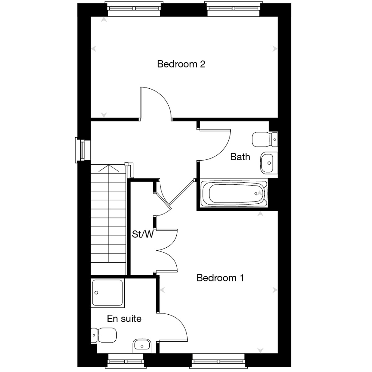
Floor plans

Room Metres Feet & Inches
Kitchen Dining Area 4.70m × 2.89m 15'5" × 9'6"
Living Room 4.06m × 3.67m 13'4" × 12'1"

Where given room dimensions are maximums, ±50mm, and include any fitted wardrobes or similar features

Ground Floor

Room Metres Feet & Inches
Bedroom 1 3.58m × 2.96m 1'9" × 9'9"
Bedroom 2 4.70m × 2.56m 15'5" × 8'5"

Where given room dimensions are maximums, ±50mm, and include any fitted wardrobes or similar features

First Floor

Taylor Wimpey Glenvale Park sales area

Useful information

This is a summary of key information about this property and what it will mean for ongoing costs once you are living in your home. For leasehold properties with a ground rent of £0, there will be a peppercorn ground rent. Council tax bands are often not released by the local authority until the property is complete but we will show this information where it is available. For further information please speak to the Sales Executives at the development.

  • Tenure: Freehold
  • Council tax band: TBC
  • Document Signing Fee: £120
  • Additional Information
  • ENG First time buyer Stamp Duty Land Tax: £5,500.00
  • ENG Existing home owner Stamp Duty Land Tax: £10,500.00

The perfect place to be

Situated in the heart of rural yet well-connected Sawbridgeworth, Tudor Park is the perfect place to call home if you're looking for a balanced lifestyle. The peaceful village is a popular choice for commuters into London looking to escape to the countryside, whilst remaining within easy reach of the busy city. A wide selection of schools and amenities including the leisure centre, cricket and tennis clubs make it the ideal choice for families, whilst easily accessible Sawbridgeworth train station and Stansted Airport make Tudor Park perfectly suited to those to love to travel.

Mortgage calculator

Mortgages are one of the biggest commitments you’ll make, and it can be hard to work out what they’ll cost you. Our mortgage calculator can help.

This mortgage calculator is provided for guidance only. Taylor Wimpey is not authorised by the Financial Conduct Authority and cannot provide and/or does not offer any advice in relation to mortgages. You should seek the advice of a Mortgage Broker to discuss your options. Taylor Wimpey makes no representation, warranty or commitment and shall have no liability or obligation whatsoever in relation to the content or use of this mortgage calculator, or correspondence with any Mortgage Broker or any transactions completed, any contract entered into by you with a Mortgage Broker, or any act or omission of a Mortgage Broker. Your home may be repossessed if you do not keep up repayments on your mortgage.

Style your new home

Did you know you could personalise your new home even before you move in?

Once you've reserved, your Sales Executive will arrange a Choices and Options Meeting, where you’ll get your opportunity to choose from a wide range of upgrades and optional extras.

You could choose tiles, flooring, kitchens, white goods, lighting… and many more features and fittings.

Then all that’s left for you to do is to move into your new home with everything already installed and working!

Personalise this home
Please contact us to discover how this home can be personalised.
*We understand that as part of the planning consent for this development a number of new homes may be designated as section 106 (section 75 in Scotland) affordable housing. These properties will remain as affordable housing tenure and are specifically shown to make it clear that they are not available for general sale. The remaining homes on the development are available for open market sale (including bulk sales) to purchasers, who could be private individuals or another type of purchaser (for example local authorities, housing associations or other commercial landlords), and therefore the mix of tenures on a development may change.

You might also be interested in

2 bedroom semi-detached

£410,000

The Beauford • Plot 94
2 bedroom semi-detached with an en suite and 2 parking spaces
Energy bills paid for 2 years*